Process
The process involved in purchasing custom cabinetry for your project is a little more involved than just dropping by our showroom, making a few decisions, and then writing a check for a design fee, retainer, or deposit. Many decisions have to be made before we can attempt to provide you with an estimate; there is the not-so-small matter of the design, not to mention that there is always a schedule that must be met. We do this process every day so we know what needs to happen and when it needs to happen, but most of our clients do not. To address this, let's take a few minutes to define the process to let you know what we will need from you, what you can expect from us, and when all these things need to take place.
Our objective here is to define our step-by-step process for you. Going from a blank sheet of paper to a finished product in the custom cabinet world is a very complicated process, but it should be enjoyable for everyone involved. With a little extra planning and a lot of communication between all the parties involved, we can accomplish this goal.
STEP 1 ~ Job Information
When you first contact us we need to get a good idea of what the scope of your project will be and then, begin discussing your ideas. We will need to determine if your project is a new home build, a remodel, or simply adding new cabinets to an open space in your home. We will collect photos and/or plans of your house as needed along with any inspiration photos that you may have.
The ultimate objective of this first step is to determine approximately how many cabinets will be needed for your projects so we can move to the next step of providing you with a Ballpark Estimate.
The things we will need from you to move forward to the Ballpark Estimate phase are:
- Blueprints (if available)
- Drawings/Sketches
- Pictures of existing cabinetry
Would you like a Ballpark Estimate?
Click the button below, tell us a little about your project, provide some information about each room and we will get back with you as quickly as possible with a Ballpark Estimated cost of your project.
STEP 2 ~ Ballpark Estimate
A ballpark estimate is a very quick way for you to see if your budget aligns with the cost of our cabinetry. Our ballpark estimates are unique in that we provide you with three numbers. The first number represents our lowest price point, this is for a simple design and basic, value-oriented selections. The second number is based on the average costs of all our projects over the previous year. The third number represents the most expensive project we did the previous year, a complex project with selections that lean towards the luxury end of the scale and typically include more accessories than the projects that fall in the second tier cost.
Sample Ballpark Estimate
This is for example only, actual pricing varies each year.

The things we will need from you to move forward to the Selections and Specifications phase are:
- Your verbal agreement that our range of prices is within your budget or desired spending limits
- Your verbal agreement that the timeframe we can provide will work with your project timeline
- Appliance specifications (either a list of your appliances with model numbers, or the actual specification sheets)
Schedule Selections and Specifications Meeting NOW!
STEP 3 ~ Selections and Specifications
The objective of this meeting is to gather enough information from you to be able to provide you with a more formal estimate of your project's cost and to begin the Design process. This step needs to be done at our showroom since we will need you to choose a door style, wood specie, and finish for each room of cabinetry. To do this, you may need to bring some sample items with you to the showroom such as your floor covering samples, backsplash samples, countertop samples, paint color chips, etc. If you have not yet picked out some or all of these other items, that is fine; many people prefer to start with the cabinetry and pick all of these other items based on the cabinetry selections. If you have employed the services of an interior decorator or designer, you may want to bring your design professional with you to assist in these selections. We welcome the opportunity to work with your design professional and just ask that you notify us before the design consultation that your design professional will accompany you to this meeting.
During this meeting, we will discuss your ideas of what you would like your cabinetry to look like and what features you would like to incorporate into the cabinetry.
For this meeting to be as effective as possible and to be able to move forward to the Formal Estimate phase, you will need to be prepared to make your selections (door styles, wood specie, finish, etc. for each room) and provide us with the following items:
- Blueprints, if we have not yet received them
- Appliance specifications, if we have not yet received them
- List of features you would like included in your cabinetry
- Any samples you may need to assist you in your selections
STEP 4 ~ Formal Estimate
At this point, we will provide you with a formal estimate. These estimates are very detailed and will provide you with the information you need to make a fully educated decision about your custom cabinetry requirements. We are more than happy to provide several alternate pricing scenarios, so please do not hesitate to ask. If you think you might want to upgrade to an applied mold door, upgrade the drawer box, change from slab to raised panel ends, or any other change, addition or subtraction, we will be more than happy to accommodate those change requests (this is the time to do so, not after the manufacturing process has been put into motion).
Typically our estimates are sent to you via e-mail as a PDF attachment, but we can mail your estimate if needed. If you prefer face-to-face meetings, then we will be glad to schedule a virtual meeting, or a meeting in our showroom to go over your estimate, and even run a few “what if” scenarios while you are here if that would be beneficial to you. Our sophisticated estimating software makes if very easy to change wood species, finishes or door styles, and get an alternate project cost.
Phases
At this point, we will evaluate your project to see if it needs to be broken into Phases. Phases serve several purposes, the first being to accommodate for delays from one part of the project to another (gaps in time for other sub-contractors to do their work before more cabinetry is delivered and installed). Another is simply based on our capacity (what we can manufacture, deliver, and install in a week), and the coordination between other projects we might be working on.
In the example below, we would probably break this project into two Phases, the first consisting of the Laundry, Primary Bath, Secondary Baths , and Family Room, and the second consisting of the Kitchen and Kitchen Island. At times, there may be days or weeks between these Phases being delivered and installed based on our workload, and/or the project progression.
The advantage of these Phases to you the customer is that you can focus on a portion of the project Selections rather than all of the Selections, which can reduce the "Overwhelm" factor a bit, spreading the Selection process out over a few days, weeks or for very large projects, months.
Sample Formal Estimate
To move forward from the formal estimate phase of the process to the design phase, we will have to have your appliance specifications if we have not already received them. If you have not picked the appliances yet, we will need you to do that before we can proceed with the design. If you have already picked out your appliances and they were not supplied to us at the Design Consultation, then please have your appliance supplier email a copy of the appliance specifications to us as soon as possible.
The things we will need from you to move forward to the design phase are:
- Signed copy of the last page of your estimate
- A check for the design fee/retainer shown on the estimate
- Appliance specifications if we have not yet received them
Once we have all these items, we will schedule a time to visit your job site to field measure any areas that will require cabinetry. We will then produce a preliminary design and schedule a time to meet again in our showroom to go over the design.
By the way, you signing our estimate is not a contract authorizing us to manufacture your cabinetry; you are only agreeing to pay us to field measure and design your project. Once we have produced the shop drawings and ultimately a proposal, if you choose to purchase your cabinetry from us the design fee/retainer will be part of the proposed price. If you choose to purchase your cabinetry elsewhere, then you are free to take the drawings/design, which you paid for, and shop them with as many cabinetmakers as you please.
STEP 5 ~ Design
As soon as we have received your signed estimate and your check for the design fee/retainer, we will schedule a time to come and field measure your project using an advanced laser measuring device to assure accuracy. During the time we are field measuring your project, we will typically identify any conflicts with any plumbing, electrical, or HVAC items and inform the appropriate person (site supervisor, project manager, builder, etc.). We will then produce a design using our advanced design software that will allow you to see what your cabinetry will look like before we ever manufacture it.
Once your design is complete, we will ask you to schedule a design review meeting at our showroom. At this meeting, we will present you with our drawings and review them wall by wall and room by room. We will redline the drawings with any additions, changes, or subtractions and note any discrepancies that are discovered. If there are no discrepancies, additions, changes, or subtractions, or once they have been dealt with, we will then proceed to produce a detailed proposal for your project. As with the estimate, this proposal can be e-mailed or mailed to you, or we can meet at our showroom to review it in detail depending on your preferences.
The things we will need from you to move forward to the Proposal phase are:
- Initialed copy of your drawings (you agree that the design is correct and that you understand the design)
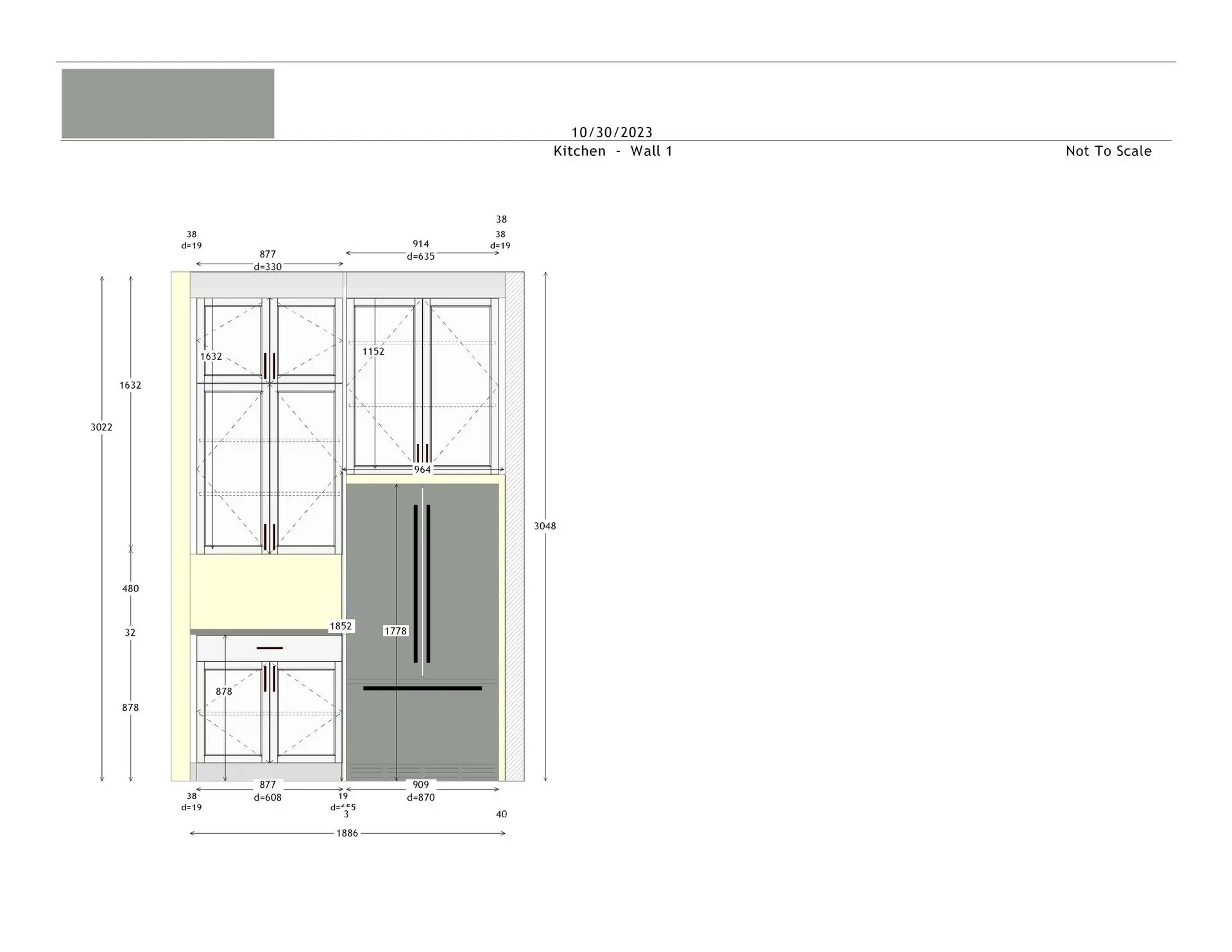
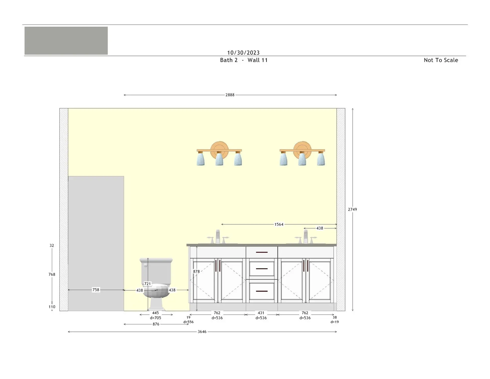
Sample Design/Shop Drawings
STEP 6 ~ Proposal
Once you have reviewed the proposal, and everything meets with your approval, we will then need the following to schedule your project for manufacturing:
- Signed copy of the last page of your proposal
- A check for the deposit amount shown on the proposal
- A target delivery date for each phase of your project
Once we have all these items in our possession, we will then review our current manufacturing lead time (it ranges from 4 to 12 weeks depending on the number and size of the current projects in progress), which will determine the actual delivery date for each phase of your project. We will then notify the appropriate people of our proposed dates for delivery and installation. We will coordinate the delivery and installation with the appropriate site supervisor or the builder.
We will attempt to open a line of communication between Knightengale Cabinets and the site supervisor so they can notify us of any delays that may affect the delivery and installation schedule. We will also provide the site supervisor with mechanical shop drawings of all cabinetry involved in the project to be used to answer any questions by any of the other trades on the project.
Sample Proposal
STEP 7 ~ Engineering & Manufacturing
At this point of the project, we will visit the job site a second time to double-check our shop drawings against the actual field conditions. Typically if there are any errors on our part, or any other trade's part, we will discover it while double checking all of the dimensions in every room. If there are any errors or discrepancies, we will notify the appropriate person immediately.
The next step for us is to engineer your project, which simply means that we will review every detail of the design and check for any potential issues that may arise from the design. This includes things like making certain that the knob on a drawer on one wall of an L-shaped corner will not interfere with a drawer, door, or appliance on the opposing wall. This is a painstaking and tedious process, but it is one of the most important aspects of providing custom cabinetry. Every project is unique, and we are not installing stock cabinets in 3" increments that will allow the cabinet supplier to substitute a different-sized cabinet if one does not fit properly. We have to get it right the first time.
Once the project has been engineered, we then begin placing orders for the materials required to produce your cabinetry. All Certified True32 Custom Cabinetry Manufacturers plants practice Lean Manufacturing. One aspect of this methodology is that we do not stock large quantities of raw materials. Each affiliate only orders what is needed, which frees manufacturing space to be used for what it was intended to be used for (manufacturing and not storage), which also preserves precious cash flow.
The manufacturing philosophy of Knightengale Cabinets is that we only use top-quality materials, finishes, and components to manufacture our cabinetry. We will not compromise on this, primarily because we have to warranty our product, but secondarily because it is just not the right thing to do. To be competitive with other manufacturers that do compromise on the materials used, we have to be extremely diligent to drive out every form of waste that we can, and the elimination of excessive stocks of raw material is just one example of our continuous pursuit of eliminating waste.
Another aspect of this philosophy is in the manufacturing process itself; our plants are constantly looking for ways to remove waste from every process. We are constantly evaluating ways to eliminate any unnecessary handling of parts from our processes, always looking at how we do what we do and trying to find better ways to do it. We are resolute in our conviction that we need to remove the opportunity for mistake from each of our processes and to set the next person up for success. This mindset is obvious when you visit any of our affiliate plants; you will see operations manuals with supporting technical drawings throughout every Certified True32 Custom Cabinetry Manufacturers plant, which supports our deep desire to get it right the first time, removing the waste involved in reworks and defective products. Our three golden rules are as follows;
- Keep it Simple Socrates
- Remove the opportunity for mistakes from the process
- Set the next guy up for success
Our deep-seated beliefs in the validity of the theory of constraints provide each of us with a system of continuous improvement. The theory of constraints is based on a very simple belief that every system that is made up of dependent events (i.e., any manufacturing environment is nothing more than a series of dependent events) is limited by the weakest link in that system. Like a chain, our manufacturing systems are only as strong as our weakest link. We understand that to improve anything we must change it, but we keep in mind that all change is not necessarily good change. As a group, we are constantly analyzing our systems, looking to identify our weakest link (constraint) and to manage it to its utmost. Our throughput is determined by this weakest link, and once we recognize this and accept it, then we can become effective managers by focusing the appropriate amount of our attention on the thing that limits our progress.
Our dependence on the thinking processes provided by the theory of constraints is what makes our affiliates unique in the service portion of our industry. It is very uncommon for any trade or sub-contractor in the construction field to have a good track record when it comes to on-time delivery, but our Certified True32 Custom Cabinetry Manufacturers deliver on time every time year in and year out. As a group, we have an indisputable record of on-time delivery. We do not make promises we cannot keep, which simply means that when we say we are delivering your cabinets, we really will be there.
STEP 8 ~ Delivery and Installation
Once all of your cabinetry, or the first phase of your cabinetry, is completed, we will contact you to schedule the delivery. Depending on the terms extended, you will typically need to pay a second payment before the actual delivery (you are more than welcome to come by and inspect your cabinetry if you like), please refer to your proposal to see if this is the case. If it is, you will be contacted by someone at Knightengale Cabinets to arrange for this payment to be made. Delivery is made with our company vehicles or by professional movers, and each cabinet is blanket-wrapped to ensure that your cabinetry will not get damaged while being transported from our manufacturing facility to your job site.
This is when your vision or dream starts to become a reality. The installation process can take anywhere from a few hours to multiple days depending on the number of rooms, the quantity of cabinets involved, and the complexity of the project. This portion of the project requires extreme accuracy and highly skilled technicians to do it well. Our installers are some of the best in the industry and have the very best tools and equipment available. Our installation technicians install your cabinetry with the same skill and care that we created your cabinetry with.
All Certified True32 Custom Cabinetry Manufacturers utilize the latest technology when it comes to functional hardware to assure you of the very best fit and finish available, providing a level of accuracy that is second to none. We sincerely thank you for taking the time to review our process. I hope that this step-by-step process has been explained clearly and thoroughly, but if not then please do not hesitate to call or email us with any questions or concerns you might have.
































































